發布時間:2014-02-25 共2頁
2007年監理工程師執業資格考試《三控》真題及答案
一、單項選擇題(共80題,每題1分。每題的備選項中,只有1個最符合題意)
1. 工程建設活動中,形成工程實體質量的決定性環節是( )階段。
A. 工程設計 B. 工程施工
C. 工程決策 D. 工程竣工驗收
2. 工程項目在竣工驗收時無法進行工程內在質量的檢驗,這說明工程質量具有( )特點。
A. 隱蔽性 B. 波動性
C. 影響多樣性 D. 影響復雜性
3. 工程質量控制應該是積極主動地對影響質量的各種因素加以控制,也就是在工程質量控制中應堅持( )的原則。
A. 以預防為主 B. 以人為核心
C. 質量第一 D. 質量標準
4. 施工圖審查機構對建設項目施工圖進行審查后,應將技術性審查報告提交給( )。
A. 建設單位 B. 監理單位
C. 建設行政主管部門 D. 工程質量監督機構
5. 工程設計質量是工程質量的關鍵環節之一,設計質量首先應滿足( )。
A. 業主所需的功能和使用價值 B. 工程質量監督機構的要求
C. 承包單位施工組織的要求 D. 監理單位監理規劃的要求
6. 在實施勘察工作之前,監理工程師應審核勘察單位編制的( )。
A. 勘察規劃 B. 勘察方案
C. 勘察管理文件 D. 勘察工作責任制
7. 監理單位對施工圖紙的審核主要由( )負責組織。
A. 項目技術負責人 B. 監理單位技術負責人
C. 總監理工程師 D. 專業監理工程師
8. 圖紙會審的內容一般不包括( )。
A. 設計地震烈度是否符合當地要求 B. 防火、消防是否滿足要求
C. 建筑材料來源有無保證 D. 圖紙是否符合監理規劃所提要求
9. 凡由承包單位負責采購的原材料、半成品和構配件,在采購訂貨前應向( )申報。
A. 建設單位現場代表 B. 項目技術負責人
C. 監理工程師 D. 項目經理
10. 為了確保工程質量,施工單位必須建立完善的自檢體系,自檢體系中可不包括( )。
A. 自檢 B. 抽檢
C. 交接檢 D. 專檢
11. 施工過程中見證取樣的試驗室應是( )。
A. 施工單位的試驗室
B. 建設單位指定的試驗室
C. 監理單位指定的試驗室
D. 與承包單位沒有隸屬關系的第三方試驗室
12. 總監理工程師在施工過程中必須下達停工令的情況為( )。
A. 未經技術資質審查的施工人員進行現場施工
B. 采用未經審查認可的代用材料
C. 施工中出現質量缺陷的異常情況
D. 承包單位未經許可擅自施工
13. 施工承包單位的資質等級中,油漆、架線等作業勞務分包企業的資質( )。
A. 分為一、二級 B. 分為一、二級和臨時級
C. 分為一、二、三級 D. 不分級
14. 監理工程師對施工單位現場計量操作質量控制的主要內容是( )。
A. 對施工過程中使用的計量儀器檢測設備的質量控制
B. 對從事計量作業人員技術水平資格的審核
C. 檢查作業者的操作方法是否得當
D. 檢查現場檢測的原始記錄是否可靠
15. 工程項目竣工驗收時,需提出“工程質量評估報告”,該報告應由( )提出。
A. 建設單位 B. 施工單位
C. 質量監督站 D. 項目監理機構
16. 施工過程中,監理工程師對施工現場監督檢查的方式不包括( )。
A. 旁站 B. 專檢
C. 平行檢驗 D. 巡視
17. 為確保設備質量,需做好設備檢查驗收的質量控制,對于重要的關鍵性大型設備,應由鑒定小組進行檢驗,鑒定小組的組織者為( )。
A. 監理單位 B. 建設單位
C. 安裝單位 D. 供貨廠商
18. 設備安裝檢驗合格后,經確認滿足設備試運行條件,設備安裝單位可進行設備試運行,試運行應由( )批準。
A. 專業監理工程師 B. 安裝單位項目負責人
C. 設備供應商 D. 總監理工程師
19. 在制定檢驗批的抽樣方案時,應考慮合理分配生產方風險和使用方風險,對于主控項目兩類風險的合理控制范圍是( )。
A. α<5%,β<5% B.α<5%,β<10%
C. α<1%,β<5% D.α<1%,β<10%
20. 隱蔽工程驗收時,質量驗收記錄中的驗收結論應由( )簽字。
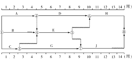
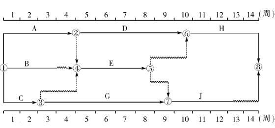
A. 施工單位質檢員 B. 施工單位技術負責人
C. 專業監理工程師 D. 質量監督站監督員
21. 施工過程中,檢驗批的驗收應由( )組織。
A. 項目技術負責人 B. 建設單位現場代表
C. 項目經理 D. 專業監理工工程師
22. 工程竣工驗收過程中,參加驗收各方對工程質量驗收意見不一致時,應( )。
A. 由建設單位最終裁定
B. 由建設單位、監理單位協調處理
C. 請當地建設行政主管部門或工程質量監督機構協調處理
D. 由建設單位、工程質量監督機構協調處理
23. 嚴重影響使用功能或工程結構安全,存在重大質量隱患的工程質量事故屬于( )。
A. 一般質量事故 B. 嚴重質量事故
C. 重大質量事故 D. 特別重大質量事故
24. 施工過程中,若出現需返工彌補的工程質量問題,監理工程師應及時( )。
A. 簽發監理通知 B. 簽發工程暫停令
C. 通知建設單位 D. 報告政府主管部門
25. 工程質量事故應按有關程序和規定處理,嚴重質量事故的歸口管理部門是( )。
A. 工程質量監督機構 B. 國家建設行政主管部門
C. 省級建設行政主管部門 D. 市、縣級建設行政主管部門
26. 為了確保工程質量事故的處理效果,凡涉及結構承載力等使用安全和其他重要性能的處理結果,通常還需要( )。
A. 請專家論證 B. 進行定期觀測
C. 做必要的試驗和鑒定工作 D. 請工程質量監督機構認可
27. 在常用的工程質量控制的統計方法中,可以用來系統整理分析某個質量問題及其產生原因之間關系的方法是( )。
A. 相關圖法 B. 樹枝圖法
C. 排列圖法 D. 直方圖法
28. 在下列事件中,可引起質量波動的偶然性原因是( )。
A. 設計計算允許誤差 B. 材料規格品種使用錯誤
C. 施工方法不當 D. 機械設備出現故障
29. 施工過程中,使用控制圖分析生產過程是否處于受控狀態時,常采用( )的方法收集數據。
A. 單純隨機抽樣 B. 等距抽樣
C. 多次抽樣 D. 整群抽樣
30. 表述質量管理體系并規定質量管理體系術語的質量管理體系標準是( )。
A. GB/T19000-2000 B. GB/T19001-2000
C. GB/T19004-2000 D. ISO19011
31. 建立質量管理體系首先要明確企業的質量方針,質量方針是組織的最高管理者正式發布的該組織總的( )。
A. 質量要求 B. 質量水平
C. 質量宗旨和方向 D. 質量策劃
32. “持續改進”是質量管理體系八項質量管理原則之一,其作用是為了提高質量管理體系的( )。
A. 有效性和效率 B. 科學性
C. 管理水平 D. 創造價值能力
33. 生產性建設工程總投資包括( )兩部分。
A. 建設投資和流動資金 B. 建設投資和鋪底流動資金
C. 靜態投資和動態投資 D. 固定資產投資和無形資產投資
34. 世界銀行和國際咨詢工程師聯合會對項目的總建設成本做了統一規定,內容包括項目直接建設成本、間接建設成本及( )。
A. 未明確項目的準備金和建設成本上升費用
B. 基本預備費和漲價預備費
C. 應急費和建設成本上升費用
D. 未明確項目的準備金和不可預見準備金
35. 國產非標準設備原價的確定可采用( )等方法。
A. 成本計算估價法和系列設備插入估價法
B. 成本計算估價法和概算指標法
C. 分部組合估價法和百分比法
D. 概算指標法和定額估價法
36. 城市維護建設稅的計稅基礎是( )。
A. 直接費 B. 間接費
C. 所得稅 D. 營業稅
37. 某當年完工的工程項目,建筑安裝工程費2000萬元,設備工器具購置費3000萬元,工程建設其它費600萬元,漲價預備費率為3%,建設期貸款利息180萬元,鋪底流動資金160萬元,則該項目的建設投資為( )萬元。
A. 5930 B. 5948
C. 6090 D. 6108
38. 某施工企業為了提高混凝土強度并加快模板的周轉速度,在混凝土中加入了經試驗后滿足上述要求的一種外加劑。該外加劑的費用屬于( )。
A. 措施費 B. 材料費
C. 檢驗試驗費 D. 研究試驗費
39. 建設工程定額反映了( )水平。
A. 企業管理 B. 消耗量的價值
C. 社會平均消耗 D. 社會平均先進消耗
40. 由業主提供的材料數量及相應的價格,應填入( )中。
A. 分部分項工程量清單 B. 措施項目清單
C. 其它項目清單 D. 零量工作項目表
41. 在計算措施項目綜合單價時,對于夜間施工費、二次搬運費等,一般按( )計價。
A. 分包法 B. 實物量法
C. 概算法 D. 參數法
42. 《建設工程工程量清單計價規范》中采用的綜合單價為( )。
A. 全費用綜合單價 B. 不完全費用綜合單價
C. 工料綜合單價 D. 實物量綜合單價
43. 《建設工程工程量清單計價規范》附錄表中的“項目名稱”是指( )的項目名稱。
A. 分項工程 B. 分部工程
C. 單項工程 D. 單位工程
44. 可行性研究工作小組成立以后,正式開展市場調查之前要進行的工作是( )。
A. 簽訂委托協議 B. 方案編制與優化
C. 制訂工作計劃 D. 項目評價
45. 某企業從銀行貸款100萬元,期限一年,年利率12%,按月計息,到期一次性償還的本息總額為( )萬元。
A. 112. 00 B. 112. 68
C. 132. 47 D. 152. 19
46. 用于項目財務生存能力分析的指標是( )。
A. 項目投資財務凈現值 B. 投資各方財務內部收益率
C. 項目償債備付率 D. 項目凈現金流量
47. 某項目前五年累計財務凈現值為50萬元,第6、7、8年年末凈現金流量分別為40、40、30萬元,若基準收益率為8%,則該項目8年內累計財務凈現值為( )萬元。
A. 114. 75 B. 134. 39
C. 145. 15 D. 160. 00
48. 初步設計階段限額設計控制工作的重點是( )。
A. 初步設計方案的比較選擇 B. 設計進度的控制
C. 設計概算的編制 D. 設計費用的支付
49. 某產品各功能的功能系數和成本系數如表所示,應列為價值工程優先改進對象的是( )功能。
|
功能 |
F1 |
F2 |
F3 |
F4 |
|
功能系數 |
0.36 |
0.2 |
0.25 |
0.19 |
|
成本系數 |
0.3 |
0.2 |
0.26 |
0.24 |
A. F1 B. F2
C. F3 D. F4
50. 施工圖預算審查方法中,審查質量高、效果好但工作量大的是( )。
A. 標準預算審查法 B. 重點審查法
C. 逐項審查法 D. 對比審查法
51. 估算工程量單價合同結算工程價款的主要依據是投標單價和( )。
A. 工程量清單中提供的工程量
B. 承包人投標書中填報的工程量
C. 按合同及設計文件要求實際完成的工程量
D. 工程標底計算所依據的工程量
52. 從支付工程款的時間順序出發,投標人對土方分項工程和電氣設備安裝分項工程采用不平衡報價時,應遵循的原則是( )。
A. 土方分項工程單價適當提高,電氣安裝分項工程單價適當降低
B. 土方分項工程單價適當降低,電氣安裝分項工程單價適當提高
C. 兩者單價均適當提高
D. 兩者單價均適當降低
53. 在不影響施工總工期的前提下,有利于業主降低資金成本的工作安排方式是( )。
A. 所有工作均按最早開始時間安排
B. 所有工作均按最遲開始時間安排
C. 早期工作按最早時間安排,后期工作按最遲時間安排
D. 早期工作按最遲時間安排,后期工作按最早時間安排
54. 根據《建設工程施工合同(示范文本)》規定,當發生工程變更,原合同中又沒有適用和類似于變更工程的價格時,變更工程的價格應( )。
A. 由承包人和工程師共同提出,經業主批準后執行
B. 由專業監理工程師提出,經業主確認后執行
C. 由業主提山,經承包商同意后執行
D. 由承包入提出,經工程師確認后執行
55. 某合同價為30萬元的分項工程采用調值公式法進行動態結算。可調值部分占合同總價的70%,可調值部分由A、B、C三項成本要素構成,分別占可調值部分的20%、40%、40%,基準日期價格指數均為100,結算依據的價格指數分別為110、95、103,則結算的價款為( )萬元。
A. 24. 18 B. 30. 25
C. 33. 18 D. 34. 52
56. 新增固定資產價值的計算是以( )為對象的。
A. 分項工程 B. 分部工程
C. 單位工程 D. 單項工程
57. 監理單位接受建設單位委托對工程項目實施全過程監理時,需要在設計準備階段( )。
A. 編制工程項目設計出圖計劃
B. 進行環境及施工現場條件的調查和分析
B. 審查工程項目建設總進度計劃
D. 進行工程項目工期目標的論證和決策
58. 對工程項目從開始建設至竣工投產進行統一部署的工程項目建設總進度計劃,其內容包括( )。
A. 施工圖設計工作進度計劃表 B. 年度建設資金平衡表
C. 工程項目進度平衡表 D. 分部分項工程施工進度計劃表
59. 橫道圖作為建設工程進度計劃的直觀表示方法,其主要優點是能夠( )。
A. 明確表達工作之間的邏輯關系
B. 直觀表示工作所擁有的機動時間
C. 明確表達影響工期的關鍵工作
D. 直觀表示各項工作的開始和結束時間
60. 建設工程組織流水施工時,用來表達流水施工在空間布置方面的狀態參數是( )。
A. 施工段 B. 流水強度
C. 流水節拍 D. 施工過程
61. 建設工程組織流水施工時,相鄰兩個專業工作隊相繼開始施工的最小間隔時間稱為( )。
A. 間歇時間 B. 流水步距
C. 流水節拍 D. 提前插入時間
62. 某分部工程有4個施工過程,各分為3個施工段組織加快的成倍節拍流水施工。各施工過程在各施工段上的流水節拍分別為6、4、6、4天,則專業工作隊數應為( )個。
A. 3 B. 4
C. 6 D. 10
63. 某分部工程有3個施工過程,各分為4個施工段組織流水施工,流水節拍分別為4、3、2、5, 2、5、4、3和4、3、3、4天,則3個施工過程之間的流水步距分別為( )天。
A. 5和4 B. 5和3
C. 4和2 D. 3和4
64. 某工程雙代號網絡計劃如下圖所示,其關鍵線路有( )條。

A. 1 B. 2
C. 3 D. 4
65. 當雙代號網絡計劃的計算工期等于計劃工期時,以關鍵節點為完成節點的工作的( )。
A. 總時差最小 B. 自由時差為零
C. 自由時差等于總時差 D. 時間間隔最小
66. 在工程網絡計劃中,關鍵線路是指( )的線路。
A. 單代號網絡計劃中時間間隔全部為零
B. 單代號搭接網絡計劃中時距總和最大
C. 雙代號網絡計劃中由關鍵節點組成
D. 雙代號時標網絡計劃中無虛箭線
67. 某工程雙代號時標網絡計劃如下圖所示,其中工作B的總時差和自由時差( )。
.gif)
A. 均為1周 B. 分別為3周和1周
C. 均為3周 D. 分別為4周和3周
68. 在下圖所示雙代號時標網絡計劃中,如果C、E、H三項工作因共用一臺施工機械而必須順序施工,則該施工機械在現場的最小閑置時間為( )周。
.gif)
A. 4 B. 3
C. 2 D. 1
69. 工程網絡計劃的工期優化是通過( )。
A. 改變關鍵工作間的邏輯關系而使計算工期滿足要求工期
B. 改變關鍵工作間的邏輯關系而使計劃工期滿足要求工期
C. 壓縮關鍵工作的持續時間而使要求工期滿足計劃工期
D. 壓縮關鍵工作的持續時間而使計算工期滿足要求工期
70. 工程網絡計劃的費用優化是指尋求( )的過程。
A. 工期固定條件下最低工程總成本
B. 資源有限條件下最低工程總成本
B. 工程總成本最低時的工期安排
D. 工程總成本最低時資源均衡使用
71. 某工程單代號搭接網絡計劃如下圖所示,節點中下方數字為該工作的持續時間,其中關鍵工作是( )。
.gif)
A. 工作A和工作B B. 工作C和工作D
C. 工作B和工作E D. 工作C和工作E
72. 在建設工程進度調整的系統過程中,采取措施調整進度計劃時,應當以( )為依據。
A. 本工作及后續工作的總時差 B. 本工作及后續工作的自由時差
C. 非關鍵工作所擁有的機動時間 D. 總工期和后續工作的限制條件
73. 當利用S曲線比較實際進度與計劃進度時,如果檢查日期實際進展點落在計劃S曲線的右側,則該實際進展點與計劃S曲線在橫坐標方向的距離表示工程項目( )。
A. 實際進度超前的時間 B. 實際進度拖后的時間
C. 實際超額完成的任務量 D. 實際拖欠的任務量
74. 下列關于某項工作進度偏差對后續工作及總工期的影響的說法中,正確的是( )。
A. 工作的進度偏差大于該工作的總時差時,則此進度偏差只影響后續工作
B. 工作的進度偏差大于該工作的總時差時,則此進度偏差只影響總工期
C. 工作的進度偏差未超過該工作的自由時差時,則此進度偏差不影響后續工作
D. 非關鍵工作出現進度偏差時,則此進度偏差不會影響后續工作
75. 監理單位接受建設單位委托進行工程設計監理時,為了有效地控制設計工作進度,應當( )。
A. 編制工程設計作業進度計劃
B. 審查設計進度計劃的合理性和可行性
C. 檢查工程設計人員的專業構成情況
D. 編制工程設計階段進度計劃
76. 在建設工程施工階段,監理工程師控制施工進度的工作內容包括( )。
A. 編制施工進度控制工作細則
B. 編制施工準備工作計劃
B. 協助承包單位確定工程延期時間
D. 及時支付工程進度款
77. 某項工作是由三個同類性質的分項工程合并而成的,各分項工程的工程量Qi和產量定額Si分別是:Q1=240m3,S1=30m3/工日;Q2=360m3,S2=60m3/工日;Q3=720m3,S3=80m3/工日。其綜合時間定額為( )工日/m3.
A. 0. 013 B. 0. 015
C. 0. 017 D. 0. 020
78. 在建設工程施工過程中,為了加快施工進度,可采取的組織措施包括( )。
A. 改進施工工藝 B. 采用更先進的施工機械
C. 增加每天的施工時間 D. 改善勞動條件
79. 根據工程延期的審批程序,當工程延期事件發生后,承包單位首先應在合同規定的有效期內向監理工程師提交( )。
A. 詳細的工程延期申述報告 B. 工程延期意向通知
C. 工程延期理由及依據 D. 準確的工程延期時間
80. 監理工程師控制物資供應進度的工作內容包括( )。
A. 確定物資供應分包方式 B. 確定物資供應中標單位
C. 辦理物資運輸有關手續 D. 組織編制物資供應招標文件
二、多項選擇題(共40題,每題2分。每題的備選項中,有2個或2個以上符合題意,至少有1個錯項。錯選,本題不得分;少選,所選的每個選項得0. 5分)
81. 國家實行建設工程質量監督管理制度,工程質量監督機構的主要任務包括( )。
A. 受理委托方建設工程項目的質量監督
B. 會同監理單位檢查施工承包單位的質量行為
C. 對涉及安全的關鍵部位進行現場實地抽查
D. 向委托部門報送工程質量監督報告
E. 會同工程建設各方進行工程質量驗收
82. 下列關于參與工程建設各方質量責任或質量職責的說法,正確的有( )。
A. 監理單位在開工前,負責辦理工程質量監督手續
B. 建設單位對按合同約定采購的建筑材料負質量責任
C. 由于監理單位的原因造成的施工質量責任由監理單位負責
D. 施工單位必須按圖紙和施工技術規范標準組織施工
E. 勘察設計單位對所編制的勘察設計文件的質量負責
83. 監理工程師對勘察現場作業的質量進行控制時,應重點檢查( )。
A. 勘察實施方案的可行性 B. 原始資料取樣的方法、手段
C. 工程勘察報告的有效性 D. 原始記錄表格的填寫、簽字
E. 項目負責人在現場的工作情況
84. 監理工程師對初步設計質量審核的主要內容包括( )。
A. 結構設計的安全可靠性 B. 有關部門的審批意見和設計要求
C. 技術參數的先進合理性 D. 工藝流程的先進合理性
E. 建筑造型與立面設計
85. 施工過程中發現施工作業活動存在重大隱患,可能造成質量事故,必須立即停工時,( )有權下達停工令。
A. 專業監理工程師 B. 施工單位項目經理
C. 總監理工程師 D. 建設單位現場代表
E. 工程質量監督機構
86. 承包單位應做好技術交底,關鍵部位技術交底書的內容包括( )。
A. 施工方法 B. 施工方案
C. 施工過程中需注意的問題 D. 質量要求和驗收標準
E. 可能出現意外事件的措施及應急方案
87. 監理工程師對施工過程的質量控制是指對( )的控制。
A. 實際投入的生產要素質量 B. 作業技術活動實施狀態
C. 作業技術活動實施結果 D. 竣工驗收
E. 最終產品的質量
88. 監理工程師審查總承包單位提交的《分包單位資質報審表》時,主要審查的內容應包括( )。
A. 施工承包合同是否允許分包
B. 分包單位基本情況
C. 分包的范圍和工程部位是否可進行分包
D. 分包協議草案
E. 分包單位完成分包工程任務的能力
89. 設備安裝經檢驗合格后,還必須進行試車。設備試車時,試運行應堅持的步驟有( )。
A. 先無負荷后有負荷
B. 先從動系統后主動系統
B. 先部件后組件,再單機、機組
D. 先高速后降至低速運轉
E. 先手控、遙控、最后自控運轉
90. 在竣工驗收時,對某些剩余工程和缺陷工程,在不影響交付的前提下,經( )共同協商,施工單位可在竣工驗收后的限定時間內完成。
A. 建設單位 B. 設計單位
C. 施工單位 D. 工程質量監督機構
E. 監理單位
94. 建筑工程施工驗收統一標準中,要求施工現場質量管理應有( )。
A. 完善的檢測手段 B. 相應的施工技術標準
C. 施工質量檢驗制度 D. 健全的質量管理體系
E. 綜合施工質量水平評價考核制度
92. 建設程序是工程項目建設過程及客觀規律的反映,不按建設程序辦事是導致工程質量問題的重要原因,常見的違背建設程序的事件包括( )。
A. 邊設計邊施工 B. 無圖施工
C. 無證施工 D. 越級施工
E. 技術交底不清
93. 工程質量事故具有復雜性的特點,這是由于建筑生產的特點造成的。工程質量事故的復雜性包括( )。
A. 建筑生產質量通病多 B. 建筑生產具有流動性
C. 建筑生產露天作業多 D. 建筑生產工種多、專業多
E. 建筑生產質量狀態不穩定
94. 工程質量事故處理完成后,監理工程師在施工單位自檢合格報驗的基礎上,應( )進行驗收。
A. 嚴格按施工驗收標準及有關規范
B. 結合監理人員的旁站、巡視、平行檢驗結果
C. 依據質量事故調查報告的結果
D. 依據質量事故技術處理方案的要求
E. 通過實際量測、檢查各種資料數據
95. 控制圖法是工程質量控制的統計分析方法之一,其用途包括( )。
A. 過程控制 B. 評價過程能力
C. 找出薄弱環節 D. 掌握質量分布規律
E. 過程分析
96. ISO9000質量管理體系中,質量管理原則之一是要求以顧客為關注焦點,這里的顧客是指( )。
A. 所有個人或組織 B. 消費者
C. 最終使用者 D. 采購方
E. 零售商
97. 項目監理機構在建設工程投資控制中的主要任務包括( )。
A. 對擬建項目進行市場調查和預測
B. 編制投資估算
B. 編制與審查設計概算
D. 評標定標
E. 協助業主與承包商簽訂承包合同
98. 進口設備的CIF價包括了設備的( )。
A. 貨價 B. 運雜費
C. 國外運輸費 D. 關稅
E. 國外運輸保險費
99. 建筑安裝工程稅金包括國家稅法規定應計入建筑安裝工程造價的( )。
A. 增值稅 B. 所得稅
C. 營業稅 D. 城市維護建設稅
E. 教育費附加
100. 按建設工程特點分類,定額可分為( )。
A. 企業定額 B. 預算定額
C. 建筑工程定額 D. 安裝工程定額
E. 直接費定額
101. 在工程量清單計價中,如按分部分項工程單價組成來分,工程量清單報價的形式有( )。
A. 工料單價法 B. 綜合單價法
C. 實物單價法 D. 全費用綜合單價法
E. 閉口單價法
102. 建設投資估算方法包括( )。
A. 生產能力指數法 B. 分項詳細估算法
C. 擴大指標估算法 D. 綜合指標投資估算法
E. 比例估算法
103. 建設項目環境影響評價工作內容包括( )。
A. 調查研究環境條件 B. 識別和分析項目影響環境的因素
C. 提出治理和保護環境的措施 D. 比選和優化環境保護方案
E. 組織驗收環保設施
104. 強制確定法可用于價值工程活動中的( )。
A. 對象選擇 B. 功能評價
C. 功能定義 D. 方案創新
E. 方案評價
105. 設備安裝工程中,單位工程概算的編制方法包括( )。
A. 生產能力指數法 B. 資金周轉率法
C. 預算單價法 D. 擴大單價法
E. 概算指標法
106. 當實際工程量與估計工程量沒有實質性差別時,工程量變動風險由承包方承擔的合同形式包括( )。
A. 固定總價合同 B. 純單價合同
C. 可調總價合同 D. 成本加固定金額酬金合同
E. 成本加固定百分比酬金合同
107. 工程計量的依據包括( )。
A. 質量合格證書 B. 承包商填報的工程款支付申請
C. 工程量清單前言 D. 技術規范中的“計量支付”條款
E. 設計圖紙
108. 在下列材料費用中,承包商可以獲得業主補償的包括( )。
A. 由于索賠事項材料實際用量超過計劃用量而增加的材料費用
B. 由于客觀原因材料價格大幅度上漲而增加的材料費用
C. 由于非承包商責任工程延誤導致的材料價格上漲而增加的材料費用
D. 由于現場承包商倉庫被盜而損失的材料費用
E. 承包商為保證混凝土質量選用高標號水泥而增加的材料費用
109. 為了確保建設工程進度控制目標的實現,可采取的合同措施包括( )。
A. 推行CM承發包模式 B. 對工期提前給予獎勵
C. 建立進度信息溝通網絡 D. 公正地處理工程索賠
E. 建立進度計劃檢查分析制度
110. 建設工程平行施工的特點包括( )。
A. 可以充分利用工作面進行施工 B. 單位時間內投入的資源量較少
C. 施工現場的組織管理比較簡單 D. 勞動力及施工機具等資源無法均衡使用
E. 各專業工作隊能夠連續作業
111. 下列關于流水施工的說法中,正確的有( )。
A. 流水步距的大小取決于加入流水的施工過程數
B. 劃分施工段的目的就是為了組織流水施工
C. 流水節拍的大小與單位時間的資源供應量有關
D. 施工段的界限應盡可能與建筑結構界限相吻合
E. 流水施工工期就是整個建設工程的總工期
112. 某分部工程雙代號網絡圖如下所示,圖中錯誤有( )。
.gif)
A. 多個起點節點 B. 多個終點節點
C. 工作代號重復 D. 存在循環回路
E. 節點編號有誤
113. 某工程雙代號網絡計劃中各節點的最早時間與最遲時間如下圖所示,該計劃表明( )。
.gif)
A. 工作1-3的自由時差為1 B. 工作4-5為關鍵工作
C. 工作4-6為關鍵工作 D. 工作5-8的總時差為零
E. 工作7-8的自由時差為2
114. 在工程網絡計劃中,關鍵工作是指( )的工作。
A. 單代號網絡計劃中最遲完成時間與最早完成時間相差最小
B. 雙代號時標網絡計劃中工作箭線上無波形線
C. 單代號搭接網絡計劃中最遲開始時間與最早開始時間相差最小
D. 雙代號網絡計劃中兩端節點均為關鍵節點
E. 單代號搭接網絡計劃中與緊后工作之間時距最大
115. 工程網絡計劃的資源優化是指( )的過程。
A. 在工期保持不變的條件下,使資源強度最小
B. 在滿足資源限制條件下,使工程總成本最低
C. 在滿足資源限制條件下,使工期延長最少
D. 在工期保持不變的條件下,使資源需用量盡可能均衡
E. 在資源強度保持不變的條件下,使資源需用量最少
116. 某工作計劃進度與實際進度如下圖所示,從圖中可獲得的正確信息有( )。

A. 第3天至第4天的實際進度為勻速進展
B. 第8天至第9天的實際進度為勻速進展
C. 實施過程中累計停工為2天
D. 第9天實際完成的工作量與計劃工作量相同
E. 第10天結束時該工作已按計劃完成
117. 某工程雙代號時標網絡計劃執行到第3周末和第7周末時,檢查其實際進度如下圖前鋒線所示,檢查結果表明( )。

A. 第3周末檢查時工作B拖后1周,使總工期延長1周
B. 第3周末檢查時工作F拖后0. 5周,但不影響總工期
C. 第7周末檢查時工作I拖后1周,但不影響總工期
D. 第7周末檢查時工作J拖后1周,使總工期延長1周
E. 第7周末檢查時工作K提前1周,總工期預計提前3周
118. 為了使施工進度控制目標更具科學性和合理性,在確定施工進度控制目標時應考慮的因素包括( )。
A. 類似工程項目的實際進度
B. 工程實施的難易程度
C. 工程條件的落實情況
D. 施工圖設計文件的詳細程度
E. 建設總進度目標對施工工期的要求
119. 監理單位所編制的建設工程施工進度控制工作細則的內容包括( )。
A. 工程進度款支付條件及方式 B. 進度控制工作流程
C. 進度控制的方法和措施 D. 進度控制目標實現的風險分析
E. 施工績效考核評價標準
120. 在建設工程施工階段,為了減少或避免工程延期事件的發生,監理工程師應( )。
A. 及時提供工程設計圖紙 B. 及時提供施工場地
C. 適時下達工程開工令 D. 妥善處理工程延期事件
E. 及時支付工程進度款